- Łapczyca
– ul. Do Raju
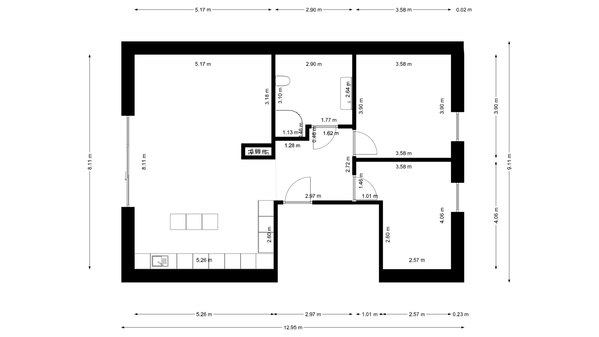
Łapczyca pod Bochnią apartament 71,01 m2, piętro, stan deweloperski
- Sprzedaż
- Mieszkanie
Cena:
770 000 zł
Piętro:
1
Ilość pięter:
1
Rynek:
Pierwotny
Stan wykończenia:
deweloperski
Rok budowy:
2025
Opis oferty
Łapczyca ul. Do Raju mieszkanie na I piętrze w stanie deweloperskim – 71,01 m² z balkonem, komórką lokatorską i dwoma miejscami parkingowymi.
Przestronne mieszkanie o powierzchni 71,01 m², usytuowane na pierwszym piętrze w nowoczesnym budynku dwulokalowym.
✅ Przestronny układ – funkcjonalne rozmieszczenie pomieszczeń, idealne dla rodziny lub osób ceniących komfort.
✅ Komórka lokatorska (20 m²) – dodatkowa przestrzeń do przechowywania.
✅ Dwa miejsca parkingowe – jedno w garażu podziemnym, drugie naziemne.
✅ Pierwsze piętro 71,01m²
✅ Cena 770 000 PLN
Mieszkanie to idealna propozycja dla osób szukających komfortowego i dobrze skomunikowanego lokum z dodatkowymi udogodnieniami.
Nowoczesne osiedle w spokojnej i zielonej okolicy.
Świetna komunikacja – szybki dojazd do centrum miasta i autostrad.
Bliskość szkół, przedszkoli, sklepów i terenów rekreacyjnych.
Standard wykonania inwestycji.
Projekt obejmuje nowoczesne budynki mieszkalne o wysokiej jakości wykonania, trwałych materiałach oraz nowoczesnych rozwiązaniach technologicznych.
Fundamenty, konstrukcja i ściany
Inwestycja opiera się na solidnej płycie fundamentowej o grubości 30 cm, wykonanej z betonu B30W8.
Ściany piwnic są żelbetowe, ocieplone styrodurem AQUA o grubości 15 cm i zabezpieczone folią kubełkową.
Sufity piwnic będą ocieplone wełną mineralną grubości 10 cm.
Wewnętrzne i zewnętrzne ściany wykonano z pustaka Thermoton, a wszystkie stropy oraz schody są monolityczne, żelbetowe.
Balkony będą wyposażone w ocynkowane balustrady koloru czarnego.
Elewacja
Budynki zostaną ocieplone styropianem o grubości 20 cm i pokryte tynkiem w strukturze „baranek” (1,5 mm) w kolorach białym i grafitowym.
Instalacje
W budynkach zostaną wykonane wszystkie niezbędne instalacje: wodno-kanalizacyjna, gazowa, elektryczna, telewizyjna, internetowa, alarmowa oraz domofonowa.
Ogrzewanie będzie realizowane za pomocą gazowego pieca kondensacyjnego z ogrzewaniem podłogowym w całym budynku oraz grzejnikami w pomieszczeniach lokatorskich. Wentylacja mechaniczna.
Dach
Konstrukcja dachowa drewniana, impregnowana, pokryta płaską blachą na rąbek.
Systemy kominowe wentylacyjne i spalinowe, a także podbitka dachowa wykonana z blachy.
Stolarka okienna i drzwiowa
W inwestycji zastosowane wysokiej jakości okna w systemie VEKA Softline 82MD
oraz drzwi zewnętrzne w kolorze grafitowym.
Drzwi zewnętrzne oraz wewnątrz klatkowe antywłamaniowe.
Zagospodarowanie osiedla
Osiedle zostanie kompleksowo zagospodarowane – wjazdy oraz parkingi będą wyłożone grafitową kostką brukową.
Planowane jest standardowe ogrodzenie lub żywopłot z tui (decyzja do ustalenia).
Przestrzeń zielona zostanie starannie zaaranżowana, a na terenie osiedla znajdzie się oświetlenie zewnętrzne (rozważana opcja solarna) oraz wydzielone miejsce na śmietnik.
Klatka schodowa i części wspólne
Klatki schodowe będą wykończone w nowoczesnym stylu – ściany w kolorze białym z dekoracyjnymi wstawkami z cegły.
Schody zostaną pokryte płytkami, a balustrady wykonane z trwałych materiałów.
Podesty i schody zewnętrzne również będą wyłożone płytkami.
Standard wykończenia wnętrz
Ściany w mieszkaniach będą otynkowane maszynowo tynkiem gipsowym a piwnice tynkiem cementowo-wapiennym
Parapety wewnętrzne zostaną wykonane z konglomeratu marmurowego w kolorze białym, a wszystkie szpalety drzwiowe będą starannie obrobione.
Ta inwestycja łączy nowoczesne technologie, trwałość i estetykę, tworząc komfortową przestrzeń mieszkalną.
Dostępne lokale:
✅ Parter – przestronny apartament z ogródkiem
✅ Piętro – apartament z balkonem
Informacje dodatkowe
Okna:
plastikowe
Rzut
Kontakt










