- Bochnia
– ul. Rynek 17
Bochnia ul. Rynek – lokal o pow 250 m2 do wynajęcia
- Zrealizowane
- Lokal użytkowy
Cena:
kamienica
Powierzchnia użytkowa:
250 m2
Piętro:
parter
Rynek:
Wtórny
Stan wykończenia:
do remontu
Wynajęte
Opis oferty
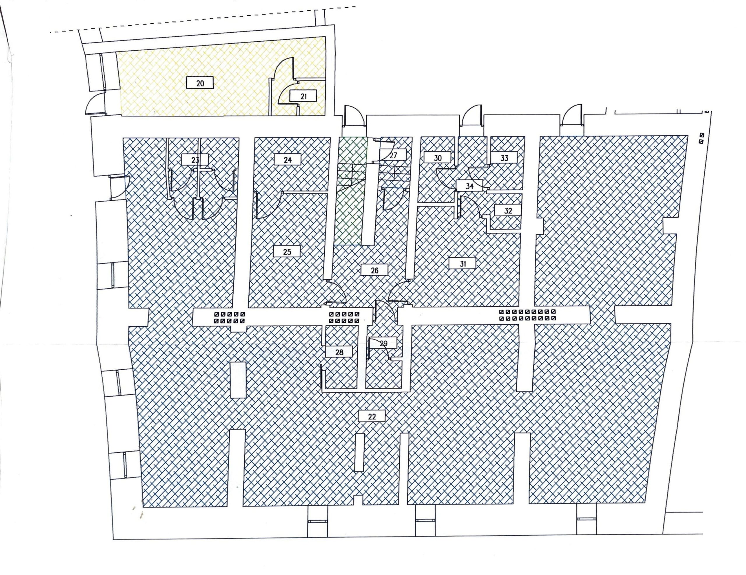
Polecamy do wynajęcia lokal gastronomiczno – usługowy położony przy ul. Rynek 17 w Bochni.
Lokal o powierzchni użytkowej 250m2, zlokalizowany w przyziemiu kamienicy.
Składa się z pięciu pomieszczeń tzw. sal, baru i zaplecza kuchennego oraz magazynowego.
W tym miejscu przez wiele lat działała jedna z pierwszych pizzerii w Bochni.
Idealnie nadaje się pod działalność gastronomiczną lub klub muzyczny.
Lokal do remontu i dostosowania do indywidualnych potrzeb klienta.
Istnieje możliwość podziału lokalu i wynajęcia mniejszej powierzchni.
Informacje dodatkowe
Media:
prąd, woda, kanalizacja
Okolica:
Szkoła podstawowa, Przedszkole, Supermarket, Targ, Restauracja, Kawiarnia, Biblioteka, Apteka, Przystanek autobusowy, Parking, Kościół, Park, Plac zabaw
Położenie:
centrum miasta
Dojazd:
droga asfaltowa
Ogrzewanie:
elektryczne
Rzut
Kontakt








