- Bochnia
– Bochnia ul. T Kościuszki 11
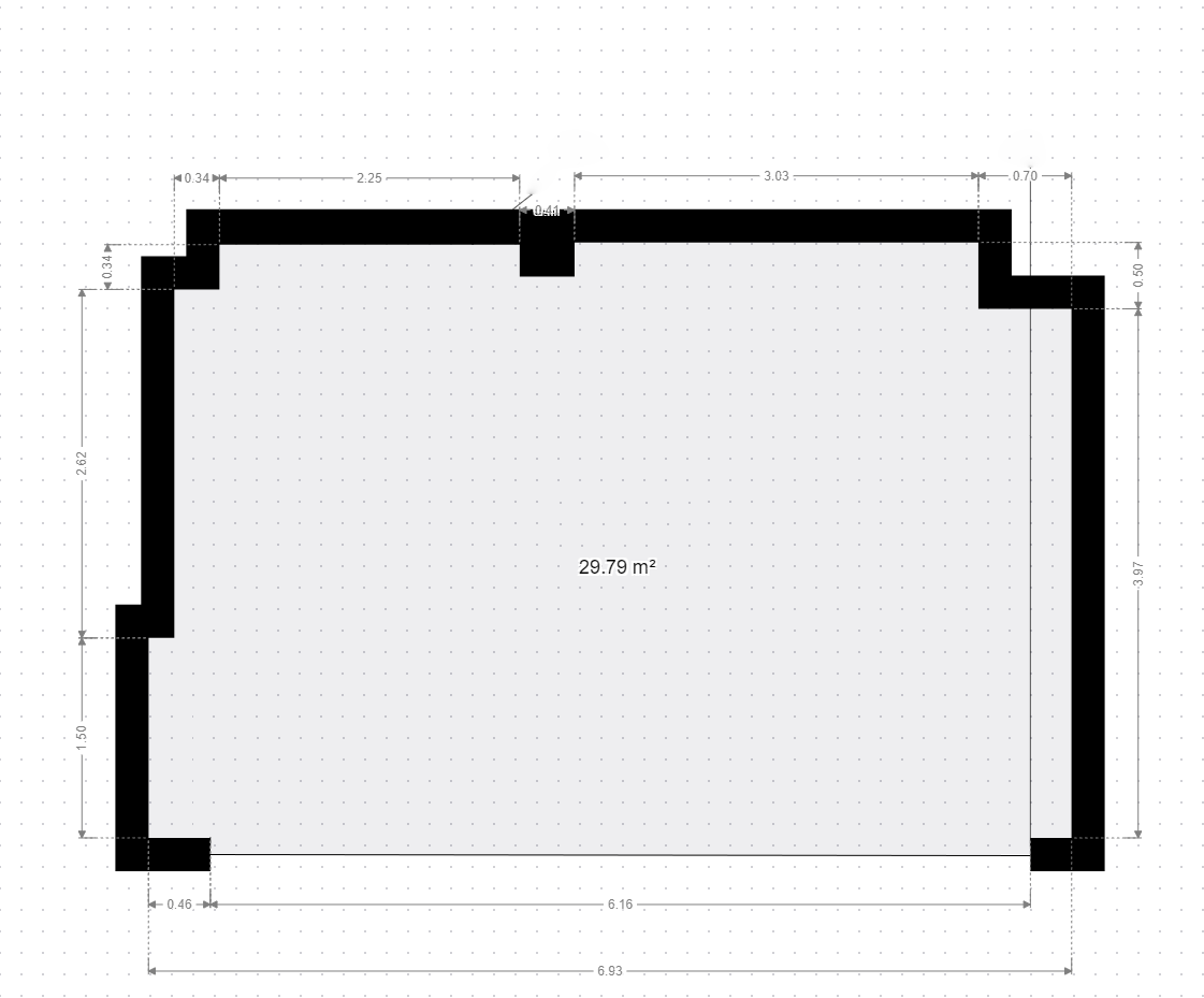
Bochnia ( Galeria Stella ) – lokal o powierzchni 30 mkw na I piętrze – do wynajęcia
- Zrealizowane
- Lokal użytkowy
Cena:
Powierzchnia użytkowa:
30 m2
Piętro:
1
Ilość pięter:
2
Liczba pokoi:
1
Czynsz:
500 zł
Kaucja:
3 000 zł
Rok budowy:
2021
Wynajęte
Opis oferty
Oferta wynajmu przedstawia atrakcyjny lokal o powierzchni 30 m², usytuowany na I piętrze Galerii Stella, w centrum Bochni. Lokal posiada eleganckie, przeszklone pomieszczenie, które świetnie sprawdzi się jako biuro, sala konferencyjna lub miejsce do spotkań z klientami. Jest wyposażony w instalację wodną, co zwiększa jego funkcjonalność.
W budynku widna ogólnodostępna.
Dzięki swojej lokalizacji i przestrzeni, lokal nadaje się zarówno do działalności handlowej, usługowej, jak i biurowej. Dodatkowym atutem jest dostępność ogólnodostępnego parkingu przy budynku, co zapewnia komfort dla klientów i pracowników.
Czynsz najmu 1 500 zł brutto plus opłaty wg. zużycia
W celu uzyskania bardziej szczegółowych informacji, zachęcamy do kontaktu.
Informacje dodatkowe
Udogodnienia:
klimatyzacja, parking, winda
Media:
prąd, woda, kanalizacja, internet
Zabezpieczenia:
alarm, monitoring, domofon / wideofon
Położenie:
miasto
Rzut
Kontakt













