- Siedlec
Siedlec, gm. Bochnia – Dom z widokiem w cichym zakątku na 23-arowej działce.
- Zrealizowane
- Dom
Cena:
dom wolnostojący
budowlana
94 x 26 m m
Powierzchnia działki:
2318 m2
Powierzchnia użytkowa:
154.45 m2
Ilość pięter:
1
Rynek:
Wtórny
Liczba pokoi:
5
Stan wykończenia:
do zamieszkania
Rok budowy:
2013
Sprzedane
Opis oferty
DOM
Budowa domu została zakończona w 2013 roku.
Dom został indywidualnie zaprojektowany dla obecnych właścicieli i wykończony z najlepszej jakości materiałów.
Mieszkała w nim 4-osobowa rodzina, a dzisiaj szukamy nowej rodziny, dla której ta przestrzeń będzie DOMEM.
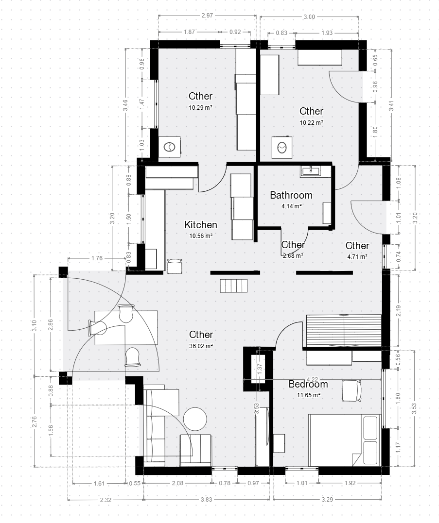
Budynek ma powierzchnię użytkową 154,45 m2
PARTER
Nowoczesną, a zarazem przytulną przestrzeń dzienna, która emanuje ciepłem i komfortem.
Wchodząc do środka, trafiasz na dużą otwartą przestrzeń, w której centralnym punktem jest salonik
To nowoczesne wnętrze łączy w sobie elegancję z przytulnością, tworząc idealną przestrzeń dzienną dla rodziny,
otwarta przestrzeń składa się z salonu z kominkiem z płaszczem wodnym, który nie tylko ogrzewa dom,
ale również dodaje pomieszczeniu ciepłego, domowego charakteru. Salon jest połączony z jadalnią,
w której centralnym elementem jest piękny stół na 6-8 osób, idealny na rodzinne posiłki i spotkania z przyjaciółmi.
Z tej części domu można bezpośrednio wyjść na ogród oraz przestronny taras z pergolą,
który staje się naturalnym przedłużeniem strefy dziennej.
Taras to doskonałe miejsce na biesiadowanie z rodziną i przyjaciółmi,
a dzieci mogą mieć tam specjalnie przygotowaną przestrzeń do zabawy.
Kuchnia, usytuowana w pobliżu jadalni, wyposażona jest w praktyczną spiżarnię,
co pozwala na wygodne przechowywanie zapasów.
Na parterze znajduje się również elegancka łazienka z prysznicem, utrzymana w nowoczesnym stylu,
a także dodatkowy pokój, który może służyć jako biuro, pokój gościnny lub dodatkowa sypialnia.
Dodatkowo w domu zaplanowano pomieszczenie techniczne, gdzie umieszczono piec,
zapewniając łatwy dostęp do systemów ogrzewania i innych urządzeń technicznych,
co zwiększa funkcjonalność przestrzeni.
Dębowymi schodami wychodzimy na kolejne piętro.
PIETRO/PODDASZE
W tej części domu znajdują się cztery niezależne sypialnie, co zapewnia komfort i prywatność dla każdego domownika.
Wszystkie sypialnie mają dostęp do przestronnej łazienki wyposażonej w wannę,
idealnej do relaksu po długim dniu.
Dodatkowo, do dyspozycji jest również garderoba, która umożliwia wygodne przechowywanie ubrań i akcesoriów.
Trzy z tych pokoi są obecnie wykorzystywane jako sypialnie.
Każdy z nich jest funkcjonalnie zaprojektowany, aby zapewnić odpowiednią przestrzeń do wypoczynku.
Czwarty pokój, który posiada balkon francuski, jest obecnie przekształcony w pokój muzyczny,
co dodaje przestrzeni artystycznego charakteru. Ten pokój doskonale nadaje się na sypialnię małżeńską,
oferując romantyczny akcent w postaci francuskiego balkonu,
który wprowadza do wnętrza naturalne światło i świeże powietrze i widok na otaczającą zieleń.
STRYCH nieużytkowy – miejsce do przechowywania
Łącznie w domu mamy 5 pokoi – salon z jadalnią, biuro/dodatkowa sypialnia,
cztery niezależne sypialnie na piętrze.
Ogrzewanie na parterze – podłogowe + kominek, na piętrze w sypialniach grzejniki,
korytarz łazienka i garderoba ogrzewane podłogowe.
Dom podzielony jest na dwie kondygnacje nadziemne, nie podpiwniczony.
GARAŻ:
Garaż dwustanowiskowy wolno stojący o powierzchni 46,2m2,
budynek parterowy z poddaszem nieużytkowym
istnieje możliwość adaptacji poddasza do celów użytkowych , bez podpiwniczenia.
Budynek posiada dwa stanowiska parkingowe oraz pomieszczenie gospodarcze.
OGRÓD i TARAS
Ogród został indywidualnie zaprojektowany, wykorzystując odpowiednio ukształtowanie terenu.
Z salonu wychodzimy na przestronny duży taras z pergolą i płótnem dającym cień w upalne dni.
Zadbany trawnik i mnóstwo kwitnących krzewów i kwiatów cieszących oko domowników.
Za domem niewielki warzywniak a przed domem duży szeroki wjazd i miejsce na dodatkowe samochody.
LOKALIZACJA
Dom znajduje się w urokliwej okolicy w miejscowości Siedlec.
Spokojne sąsiedztwo, liczne tereny zielone i widokowe miejsce.
W odległości 1km znajduje się Zespół Szkół Gminnych, Szkółka Piłki Nożnej 2 km dalej punkt widokowy na Beskidy.
1,2 km zlokalizowany jest większy sklep spożywczy.
Dom znajduje się 5,3 km od wjazdu na autostradę A4 Katowice – Rzeszów.
Siedlec zatem wydaje się być z jednej strony ukrytą miejscowością wśród luźnej zabudowy jednorodzinnej
a zarazem doskonale skomunikowane z trasami wyjazdowymi w każdym kierunku.
W tym domu z pewnością odnajdzie się 3-4 osobowa rodzina, która doceni nowoczesny
design, wysoki standard wykończenia a zarazem przytulność i wewnętrzne ciepło tego domu.
Zapraszam do kontaktu.
Informacje dodatkowe
Udogodnienia:
kominek, ogródek, umeblowanie, garaż, taras
Media:
prąd, woda, gaz, kanalizacja, internet
Wyposażenie kuchni:
zmywarka, lodówka, zamrażarka, okap, piekarnik, płyta elektryczna
Wyposażenie łazienki:
pralka, suszarka, prysznic, wanna, umywalka, bidet, lustro, grzejnik łazienkowy
Okolica:
Żłobek, Szkoła podstawowa, Przedszkole, Supermarket, Przystanek autobusowy
Zabezpieczenia:
alarm, monitoring
Położenie:
poza miastem
Dojazd:
droga asfaltowa
Poddasze:
użytkowe
Pokrycie dachu:
blachodachówka
Dach:
skośny
Okna:
plastikowe
Ogrzewanie:
gazowe, kominek
Rzut
Film
Lokalizacja na mapie
Kontakt

































































