- Brzesko
- |
- Jasień
– ul. Klonowa 56
Jasień, gm. Brzesko dom jednorodzinny według indywidualnego projektu na działce 10 ar
- Zrealizowane
- Dom
Cena:
dom wolnostojący
budowlana
23m x 42 m m
Powierzchnia działki:
999 m2
Powierzchnia użytkowa:
136 m2
Ilość pięter:
1
Rynek:
Wtórny
Certyfikat energetyczny:
TAK
Stan wykończenia:
do zamieszkania
Rok budowy:
2000
Sprzedane
Opis oferty
Przedstawiamy Państwu wyjątkowy dom jednorodzinny, zbudowany wg indywidualnego projektu, który łączy w sobie funkcjonalność, estetykę oraz komfort.
Zlokalizowany jest w Jasieniu, przy ul. Klonowej w gminie Brzesko.
Ten atrakcyjny projekt stworzony został z myślą o rodzinach szukających przestrzeni do życia oraz odpoczynku.
Architektura:
Dom parterowy o powierzchni użytkowej 136m2 z poddaszem użytkowym wyróżnia się ciekawa bryłą, która harmonijnie wpisuje się w otoczenie. Elewacja z zastosowaniem naturalnych materiałów, takich jak drewno i kamień, nadaje budynkowi przytulnego charakteru. Duże okna zapewniają doskonałe doświetlenie wnętrz oraz oferują widok na otaczającą zieleń.
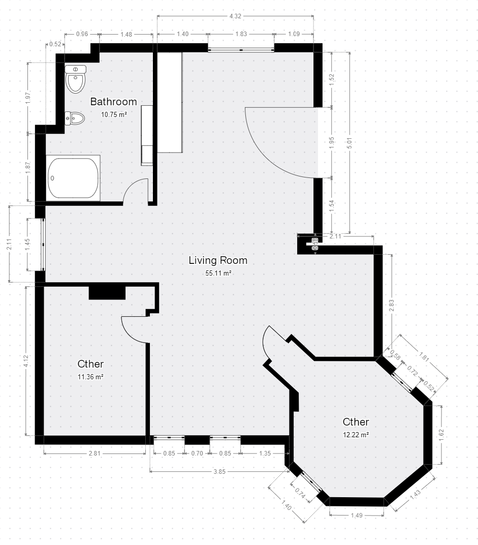
Układ pomieszczeń:
Na parterze znajduje się przestrony Salon z jadalnią, który sprzyja rodzinnym spotkaniom oraz wspólnym chwilom. Otwarta kuchnia, wyposażona w nowoczesny sprzęt AGD, umożliwia wygodne gotowanie i integrację z bliskimi. Tuż obok zlokalizowane jest przestronne pomieszczenie, które może pełnić funkcję gabinetu lub pokoju gościnnego, oraz łazienka dostępna dla domowników i gości. Na parterze budynku zlokalizowana również kotłownia i pomieszczenie gospodarcze, którego pierwotnym przeznaczeniem był garaż.
Na poddaszu użytkowym zlokalizowana są strefa wypoczynku. Znajdziemy tu otwartą przestrzeń z dostępem do balkonu, który oferuje widok na okoliczne tereny. Dodatkowo, dostępna jest przestronna łazienka oraz pomieszczenie, które można wykorzystać jako bibliotekę lub dodatkowy gabinet oraz garderoba.
Zagospodarowanie działki:
Ogrodzona działka o powierzchni 10 ar została zaprojektowana z myślą o relaksie na świeżym powietrzu. W ogrodzie znajduje się strefa wypoczynkowa z tarasem, idealna do organizacji letnich spotkań oraz rodzinnych grillów. Zastosowanie roślinności lokalnej sprawia, że przestrzeń jest nie tylko estetyczna, ale również łatwa w utrzymaniu a oczko wodne z rybkami i pięknymi liliami wodnymi dodaje dodatkowego uroku .
Systemy ekologiczne:
Dom został wyposażony w system ogrzewania oparty na piecu Co na paliwa stałe tj węgiel lub drewno.
Podsumowanie:
Dom parterowy z poddaszem użytkowym według indywidualnego projektu w Jasieniu przy ul. Klonowej to idealne miejsce dla rodzin poszukujących komfortu i nowoczesnych udogodnień.
Informacje dodatkowe
Udogodnienia:
balkon, kominek, ogródek, umeblowanie, pom. użytkowe, garaż, taras
Media:
prąd, woda, kanalizacja
Wyposażenie kuchni:
zmywarka, lodówka, okap, piekarnik
Wyposażenie łazienki:
prysznic, wanna, umywalka, bidet, lustro, grzejnik łazienkowy
Okolica:
Żłobek, Szkoła podstawowa, Przedszkole, Supermarket, Restauracja, Przychodnia, Szpital, Apteka, Przystanek autobusowy, Park
Zabezpieczenia:
alarm, teren ogrodzony
Położenie:
poza miastem
Dojazd:
droga asfaltowa
Ogrodzenie:
Ogrodzenie kamienne
Poddasze:
użytkowe
Pokrycie dachu:
dachówka
Dach:
skośny
Okna:
plastikowe
Ogrzewanie:
paliwa stałe
Materiał budynku:
pustak










































